Shipping Container Conversions 20ft Falcon Chemical Store
CS29620
Pricing
*Call For Delivery Costs
				Our client, a fresh produce grower and supplier, required a chemical storage unit, to conform with  Environmental Agency and Health and Safety standards.
CD Code CS29620
 
  

As this container is being converted into a chemical store, it must be capable of containing any spilt liquids. We do this by bunding the container. On our Falcon model we do this by creating a sumped base, overlayed with a drainage grate and drainage valves to safely empty any spillages. This is done in 5 steps:


Drainage grate


Drainage valves


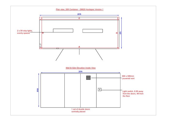
The existing end door have been welded shut, as they will not be used, and a set of standard shipping container doors are positioned in the side of the container. These door have a louvered vent fitted in, to allow fumes to escape, and ventilate the container.



Created in our own workshops, this two-tier heavy duty steel shelving is welded together for extra strength and fitted across the longside of the container


The container is spray painted grey inside and blue outside. We cover the floor grate during painting to keep it paint free.







 
 

Features
Design
Special Features:
- Set of double doors in the side
- End doors welded shut
- Reinforced steel floor
- Sumped base
- Removable drainage grate
- Drainage valves
- 300mm louvered door vent
- Two tier metal shelving
The CAD

The floor
As this container is being converted into a chemical store, it must be capable of containing any spilt liquids. We do this by bunding the container. On our Falcon model we do this by creating a sumped base, overlayed with a drainage grate and drainage valves to safely empty any spillages. This is done in 5 steps:
- Flip container on its side to remove timber floor
- Replace with steel floor welded to underside
- Create a new steel structure and weld to existing cross members
- Fit removable drainage grate, leaving sump in between
- Fit drainage valves to the bottom container rail
Reinforcing floor and creating sumped base


Drainage grate


Drainage valves


Side doors
The existing end door have been welded shut, as they will not be used, and a set of standard shipping container doors are positioned in the side of the container. These door have a louvered vent fitted in, to allow fumes to escape, and ventilate the container.



Shelving
Created in our own workshops, this two-tier heavy duty steel shelving is welded together for extra strength and fitted across the longside of the container


Repainting
The container is spray painted grey inside and blue outside. We cover the floor grate during painting to keep it paint free.



Electrics
- Consumer unit
- External hook up
- 2 x 5ft strip lights
- 1 double socket


The finished container



As with any product, specification is subject to change without prior notification. You are advised to confirm current specification before buying.

