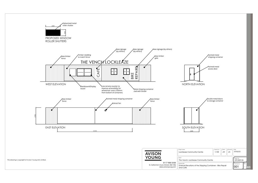
Shipping Container Conversions Community playground cafe and bike hire store - 2 x 20ft
CS104153
Pricing
*Call For Delivery Costs
Looking for something similar? Call our sales team on 0800 061 2575
CD Code CS104153

Features
Design
Special features
The design







Click to expand>>
People who viewed this product also viewed:
As with any product, specification is subject to change without prior notification. You are advised to confirm current specification before buying.